北洲ハウジング

メイプルタウン笹谷 宅地分譲

販売中
建築条件付き
分譲地
1/8

北洲ハウジングの建築条件付の宅地分譲になります。

物件情報

情報更新日

2025年11月26日 07:02

販売価格

1000万円〜2000万円

間取り

土地面積

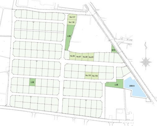
206.53㎡(1区画)〜211.11㎡(1区画)

建物面積

構造

住所

福島県福島市笹谷字上道場3-8外

土地の権利形態

所有権

完成時期

所在地MAP

物件情報

所在地

福島県福島市笹谷字上道場3-8外

交通

福島交通飯坂線「笹谷駅」徒歩11分

土地面積

206.53㎡(1区画)〜211.11㎡(1区画)

建物面積

建ぺい率・容積率

50%%、100%%

間取り

建物構造

駐車場

道路付け

開発道路 幅員9m(歩道付)・6m

私道負担・道路

負担金

電気

東北電力

上水道

市営水道

下水道

公共下水道

ガス

都市計画

市街化調整区域・第1種低層住居専用地域に準ずる

開発面積

地目

完成後宅地

土地の権利

所有権

借地権の種類・期間

建築確認番号

福島市指令開開第70号(令和5年12月28日付)

制限事項

特記事項

販売価格

1000万円〜2000万円

販売区画・戸数

8区画戸

総区画・戸数

138区画(今回販売区画数8区画)戸

造成完了時期

完成時期

引き渡し時期

売主

東栄物産株式会社 〒960-8107 福島県福島市浜田町3番17号 TEL024-531-2100(宅地建物取引業:福島県知事免許(11)第10191号、(公社)福島県宅地建物取引業協会)

取引形態

代理

学区情報

小学校:
中学校:

備考

情報更新日

2025/11/26

次回更新予定日

2025/12/10

販売会社情報

社名

北洲ハウジング

ブランド名

所在地

〒960-8254 福島県福島市南沢又字中琵琶渕38

営業時間

8:45~17:45

定休日

毎週火・水曜日

電話番号

024-573-6231

FAX

建築許可番号

建設業許可/国土交通大臣許可(特-3)第19409号 宅地建物取引業者免許/国土交通大臣(5)第6277号

宅建業免許番号

所属団体名及び公正取引協議会加盟事業者

閲覧履歴

arrow